Nieuwbouw Nieuws
Schepenbuurt
itskiphus ® 2026
volg ons op Whatsapp
De nieuwe thuishaven van de Schepenbuurt !!!!l
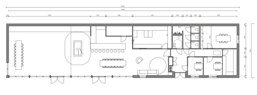
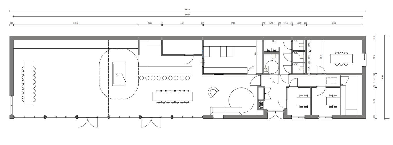
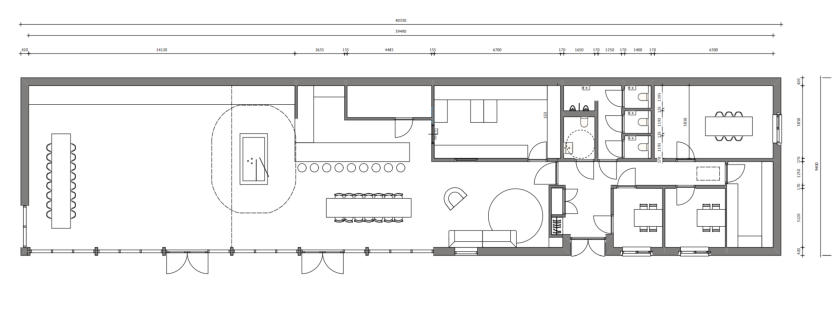
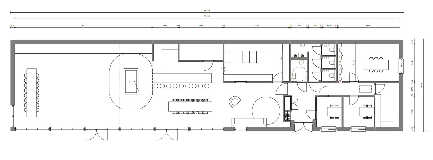
IT SKIPHUS
Thuis haven van de Schepenbuurt
Geplaatst door Redactie op 06-07-2025
Ons
nieuwe
thuis
haven
is
bekend.
Na
velen
jaren
van
strijd
en
overleggen
mogen
wij
eindelijk
het
resultaat
tonen
wat
er
gaat
komen
in
2026,
er
staat
iets
moois
op
papier
waar
wij
heel
trots
op
zijn.
Dit
jaar
(december)
gaan
wij
afscheid
nemen
van
het
huidige
pand
en
zullen
wij
plaats
gaan
maken
voor
de slopers en zullen wij rond september uitloop oktober in het nieuwe pand betreden.
Hier onder vindt u nog meer beelden van onze nieuwe thuishaven heeft u vragen of wilt u meer uitleg mail ons of kom lang in het buurthuis.
Deel dit bericht:
Tip de redactie voor nieuws mail ons via redactie@itskiphus.nl
Bron foto: Schepenbuurt
Weergegevensbron:
Leeuwarden weersvoorspelling
Home
Nieuws
Vrijwilligers
Wijkpanel
Contact
it Skiphûs
Schepenbuurt